山东巨野新区佳信·铂金豪庭小区成功中标
发布时间:2011年12月23日
| 2011年12月18 日由市住房和建设局、物管科、纪委等部门联合组织的山东巨野新区佳信• 铂金豪庭小区物业管理项目的公开招标中,通过公平、公正、激烈的竞争,我司成功中标该项目的物业管理权。 | ||
![]() |
![]() | |
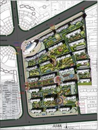
| 佳信•铂金豪庭由山东佳信置业有限公司开发,是山东巨野政府招商引资的重点地产开发项目。项目地理位置尽享人民路、光明路、青年路三大主干道之繁华,占地面积138838㎡,总建筑面积约513637㎡,绿化率30.4%,由多层、小高层、高层、商业、写字楼、酒店等27栋建筑组成,其集中供暖系统、名牌电梯系统,国内知名品牌安防系统、八大智能化配备,树立了巨野高档社区的新典范。 | ![]() | |
![]() |
巨野新区•铂金豪庭小区物业管理项目的招标、投标、评标、定标一系列工作是严格按照山东省有关法律、法规进行的。中标该项目物业管理权,彰显和证明了公司作为国家一级资质的实力,对拓展山东物业管理业务,扩大知名度具有重要的意义。 | |



